Sold By
- Loading...
- Photos
- Description
Land in Boyne Island
LEVEL BUILDING SITE WITH ELEVATED POSITION
- Land: 645m² (0.16 acres)
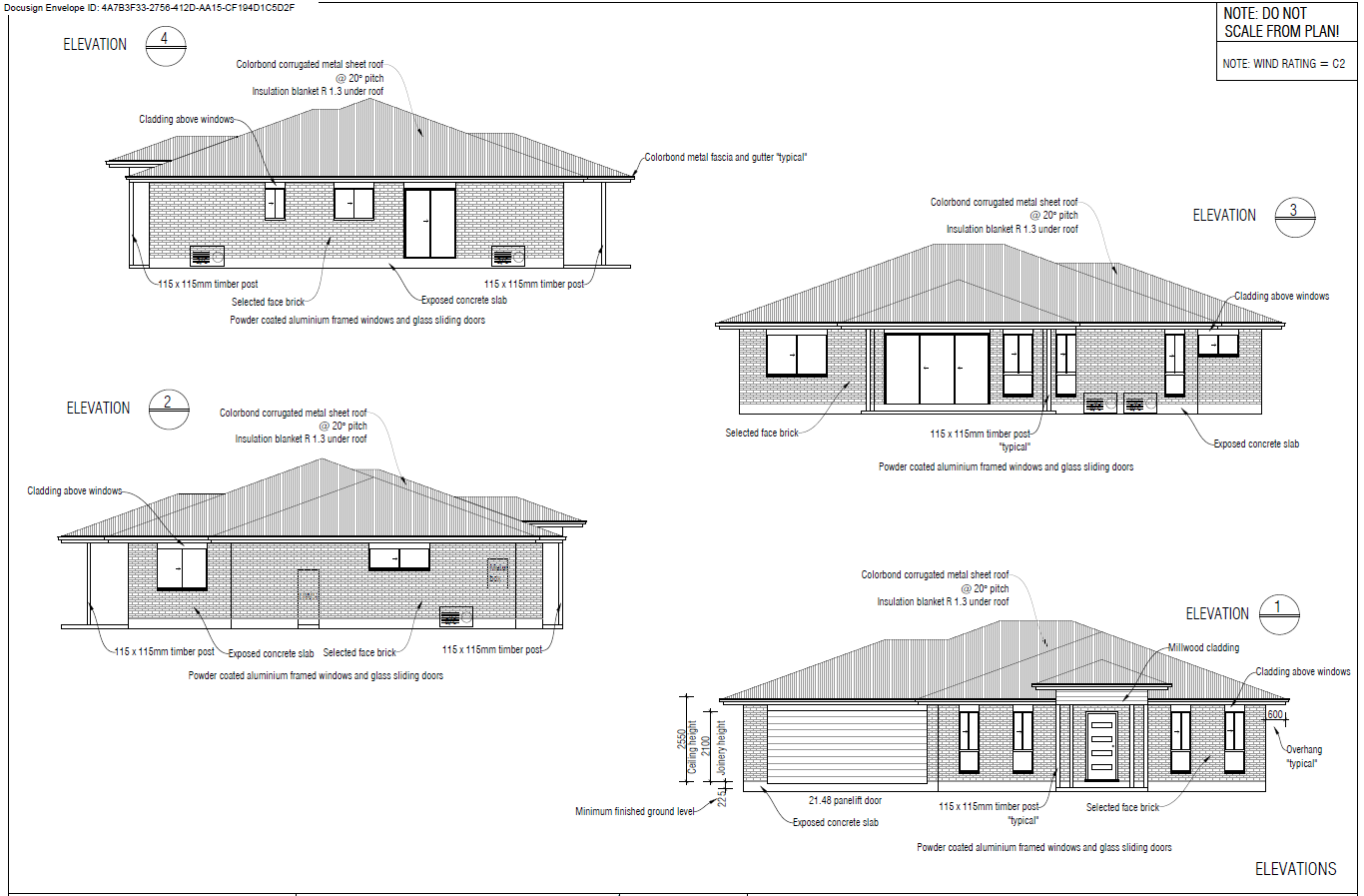
Are you looking for an affordable life style change? If you have answered YES, then this is your opportunity to purchase a prime allotment in this boutique estate only minutes from the Boyne River, shopping and schools. You don't want to miss this opportunity!
Located at the end of Marina Avenue, just off Malpas Street. The block is 645m2 and has a nice perch with the potential for river views. The site is ready for IMMEDIATE construction.
6 Tamara court is the only block left available in the Marina Cove Estate which offers the perfect opportunity to build a new home just minutes from the conveniences and recreational facilities of Boyne Island and Tannum Sands, yet within an easy commute to Gladstone.
Marina Cove is a quality life style choice with an affordable price tag.
Please contact Atlas Corrin directly for further information.
645m² / 0.16 acres
